Главная
Портфолио
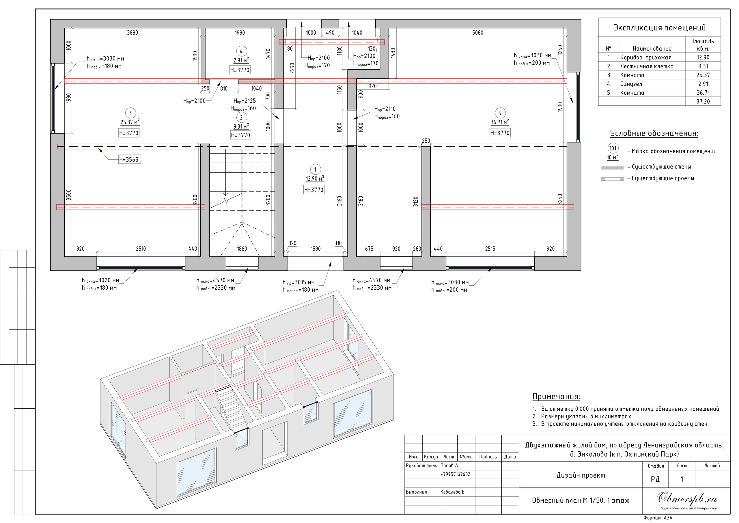
Обмеры
Планировочное решение
Дизайн-проекты
Услуги
Обмер помещений
Планировочные решения
Визуализации
Проект РД
Дипломы и сертификаты
Отзывы
О нас
Обмеры помещений, квартир и домов в Санкт-Петербурге и Сочи
Обмеры помещений, квартир и домов в Санкт-Петербурге и Сочи
Обмеры
ЖК Ленинград
ЖК Триумф Парк
ЖК Yoga
ЖК Притяжение
ЖК Эталон
ЖК Легенда Героев
Охта парк
Введенская 19
Малая Бухарестская 12
Невский 137
ЖК Петровская доминанта
Добролюбова 2а
ЖК Цивилизация на Неве
ЖК Галактика
ЖК Life Лесная