Главная
Портфолио
Обмеры
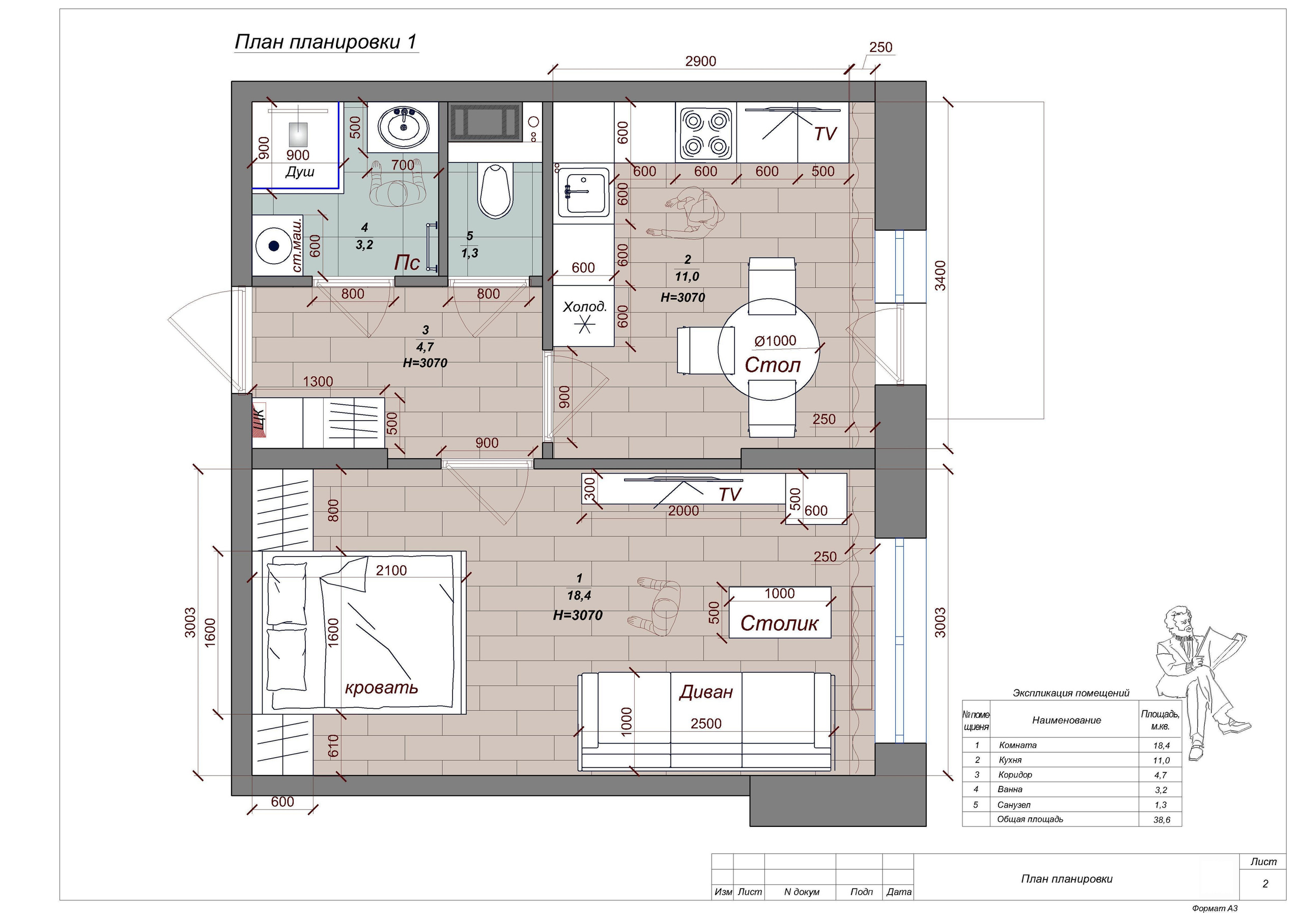
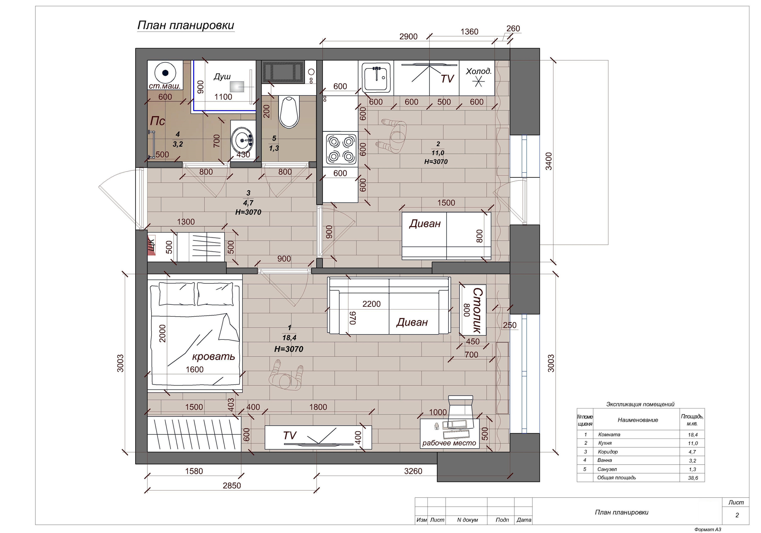
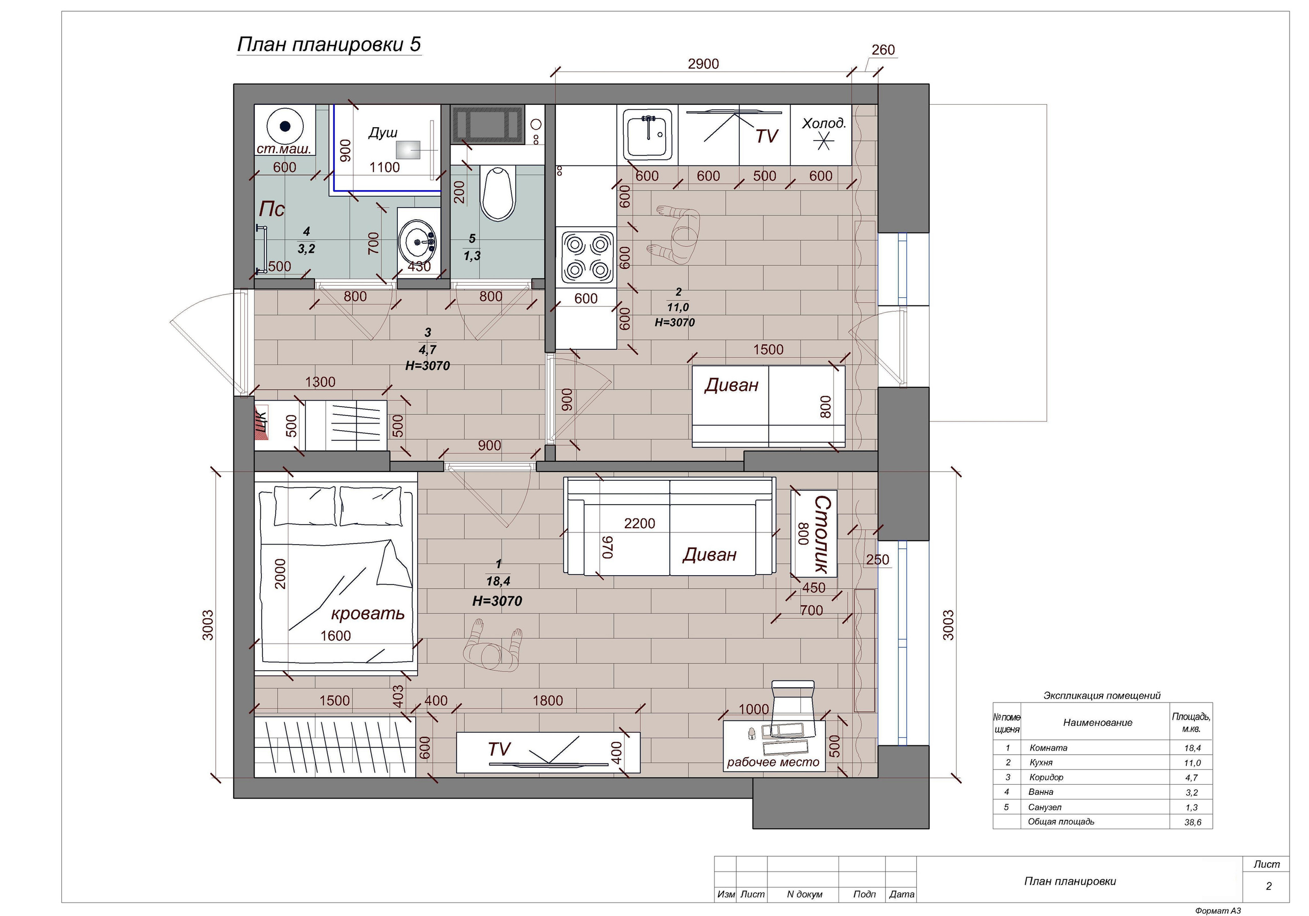
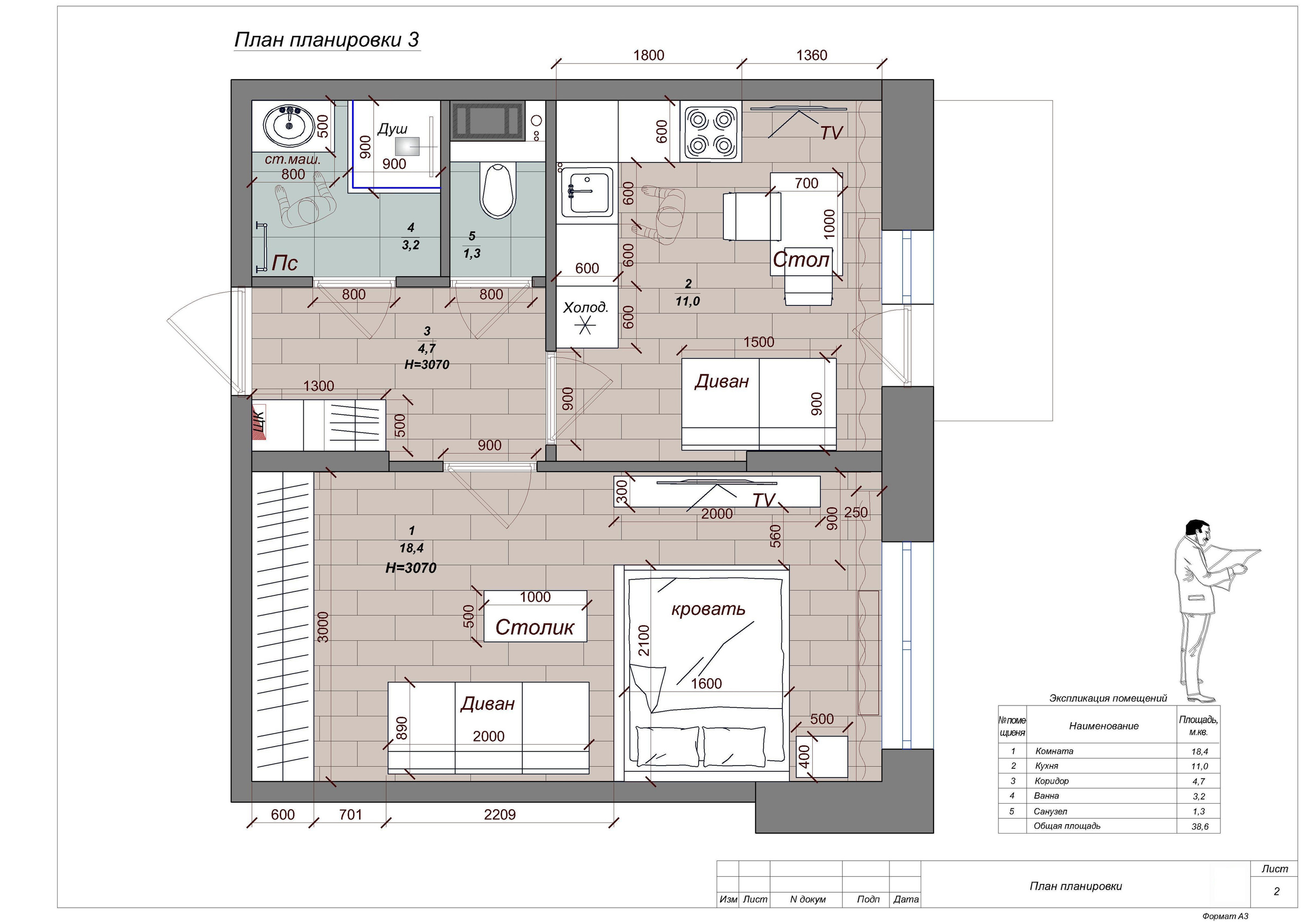
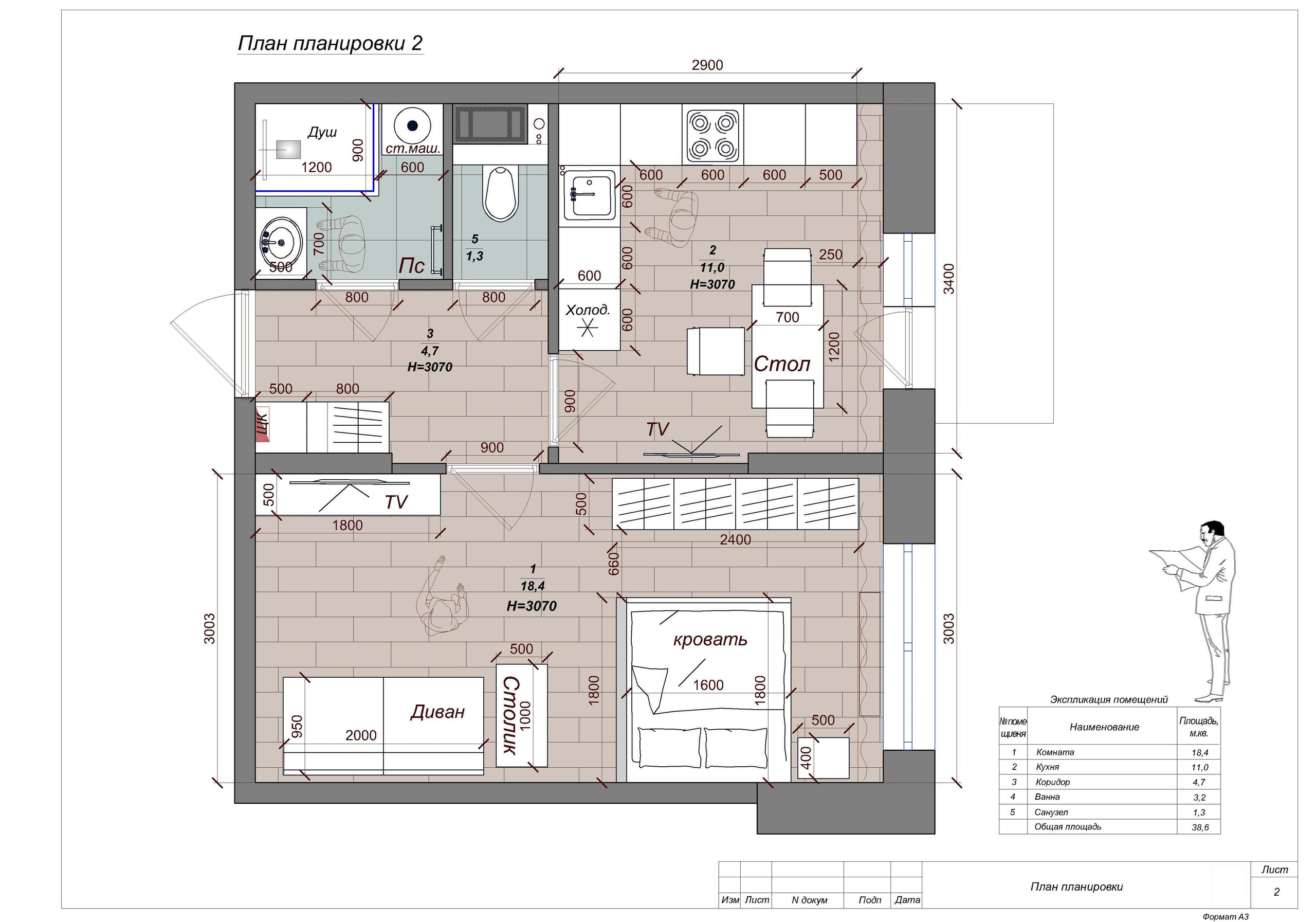
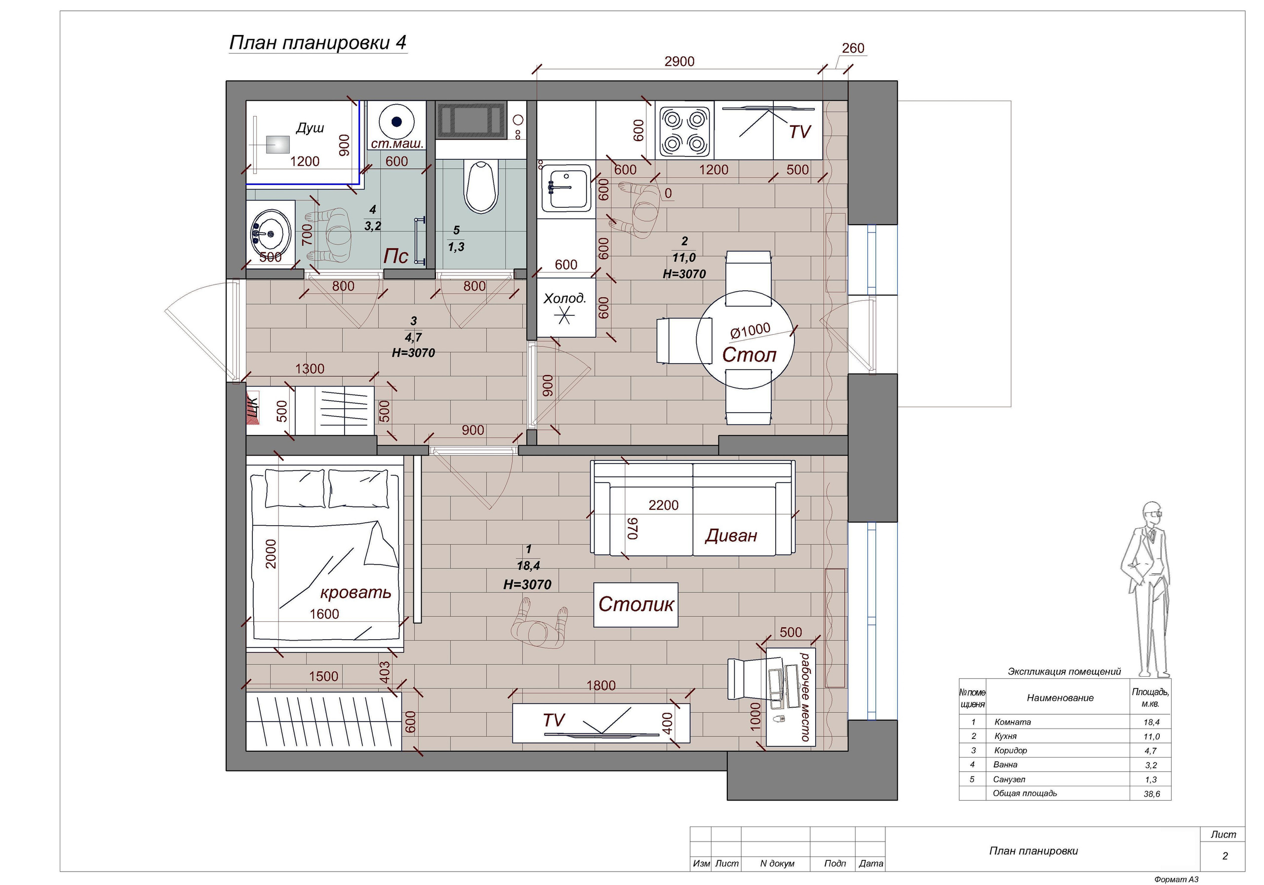
Планировочное решение
Дизайн-проекты
Услуги
Обмер помещений
Планировочные решения
Визуализации
Проект РД
Дипломы и сертификаты
Отзывы
О нас
Планировочное решение
Планировочные решения коттеджа
Перепланировка пятикомнатной квартиры
Перепланировка двухкомнатной квартиры
Перепланировка апартаментов
Перепланировка трехкомнатной квартиры