Главная
Портфолио
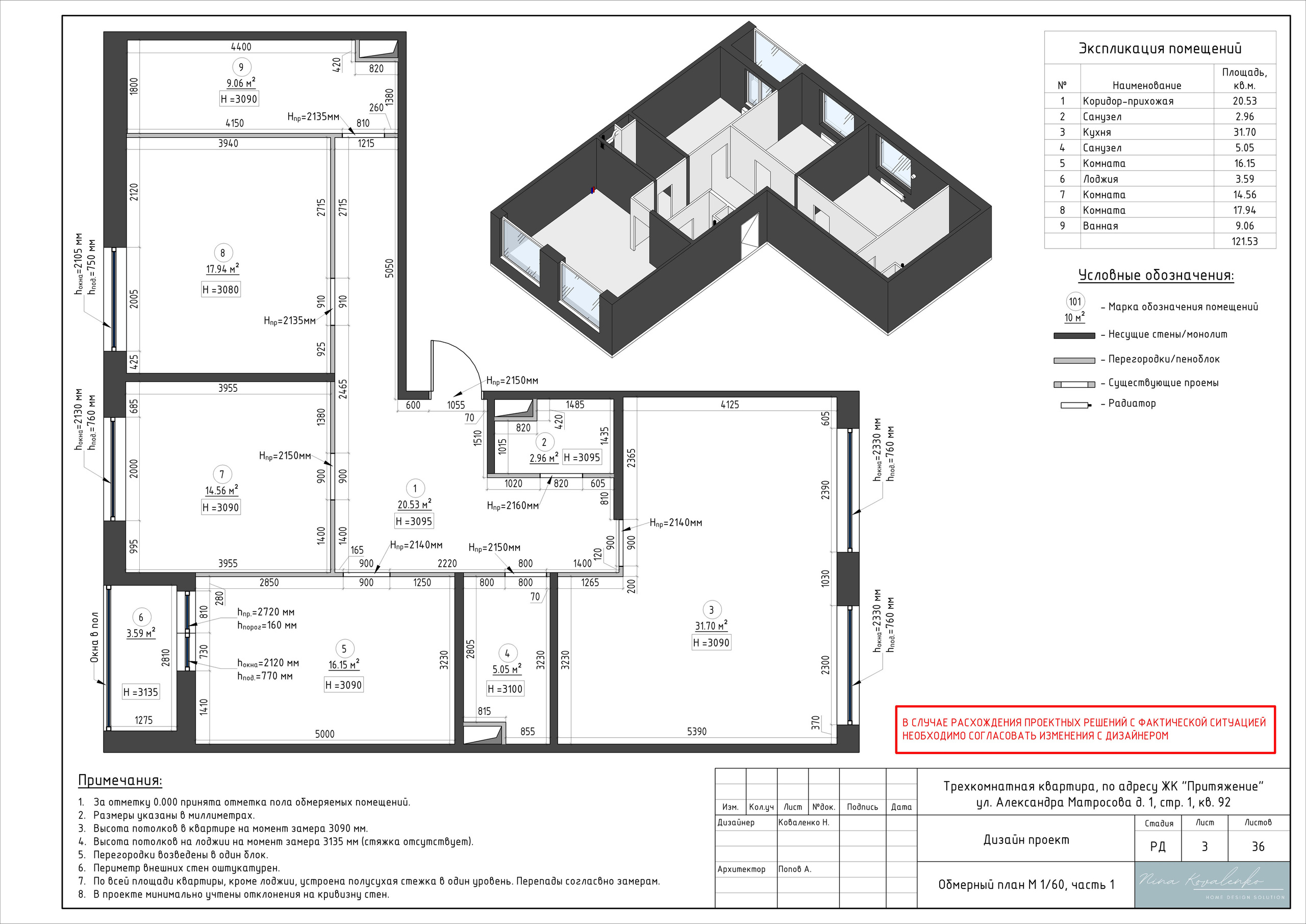
Обмеры
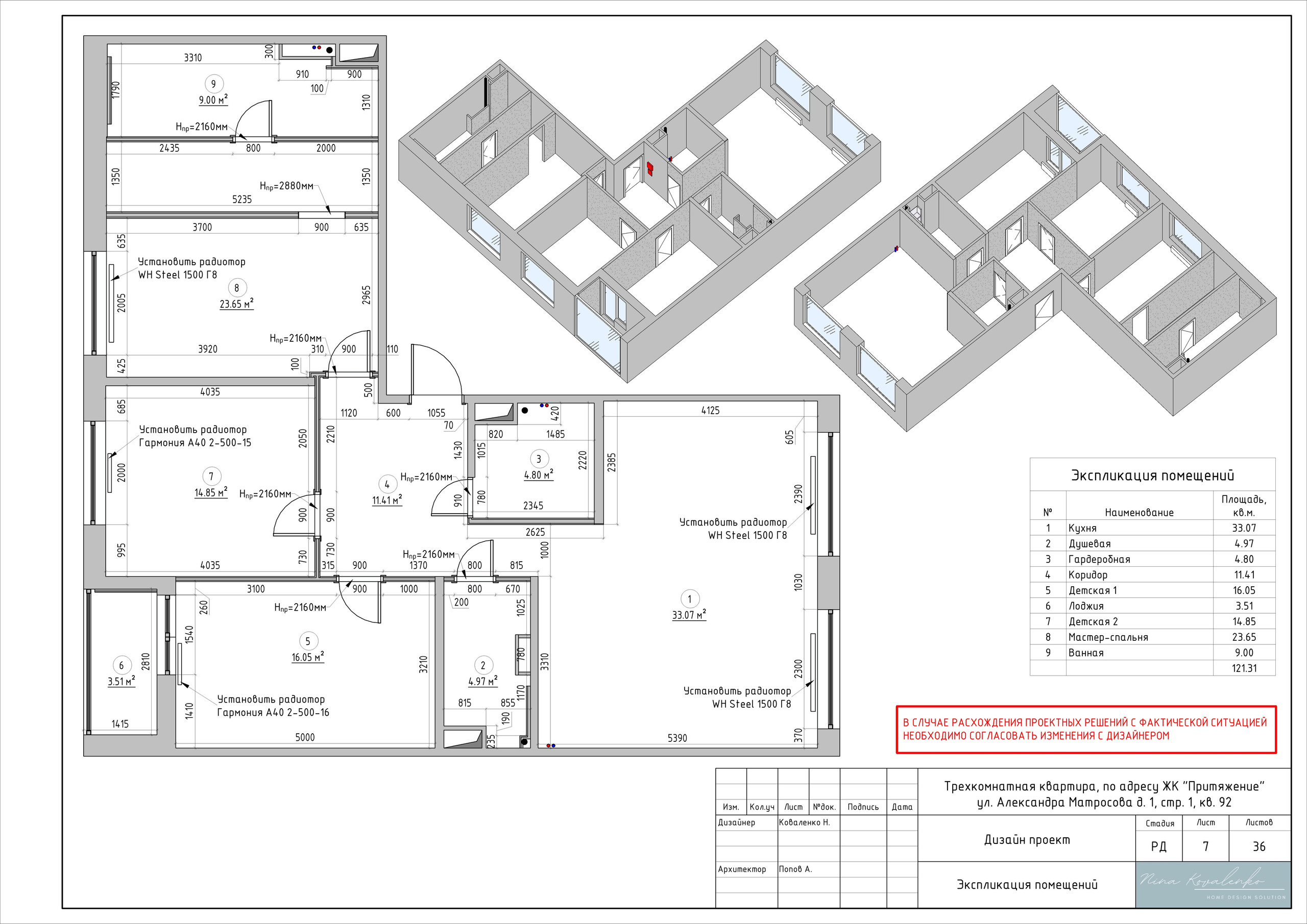
Планировочное решение
Дизайн-проекты
Услуги
Обмер помещений
Планировочные решения
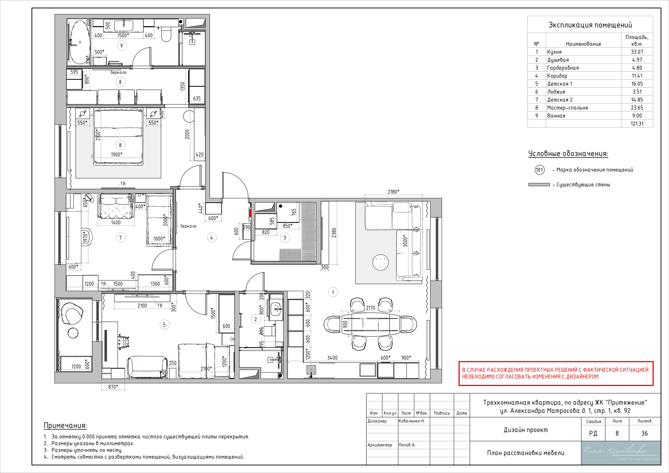
Визуализации
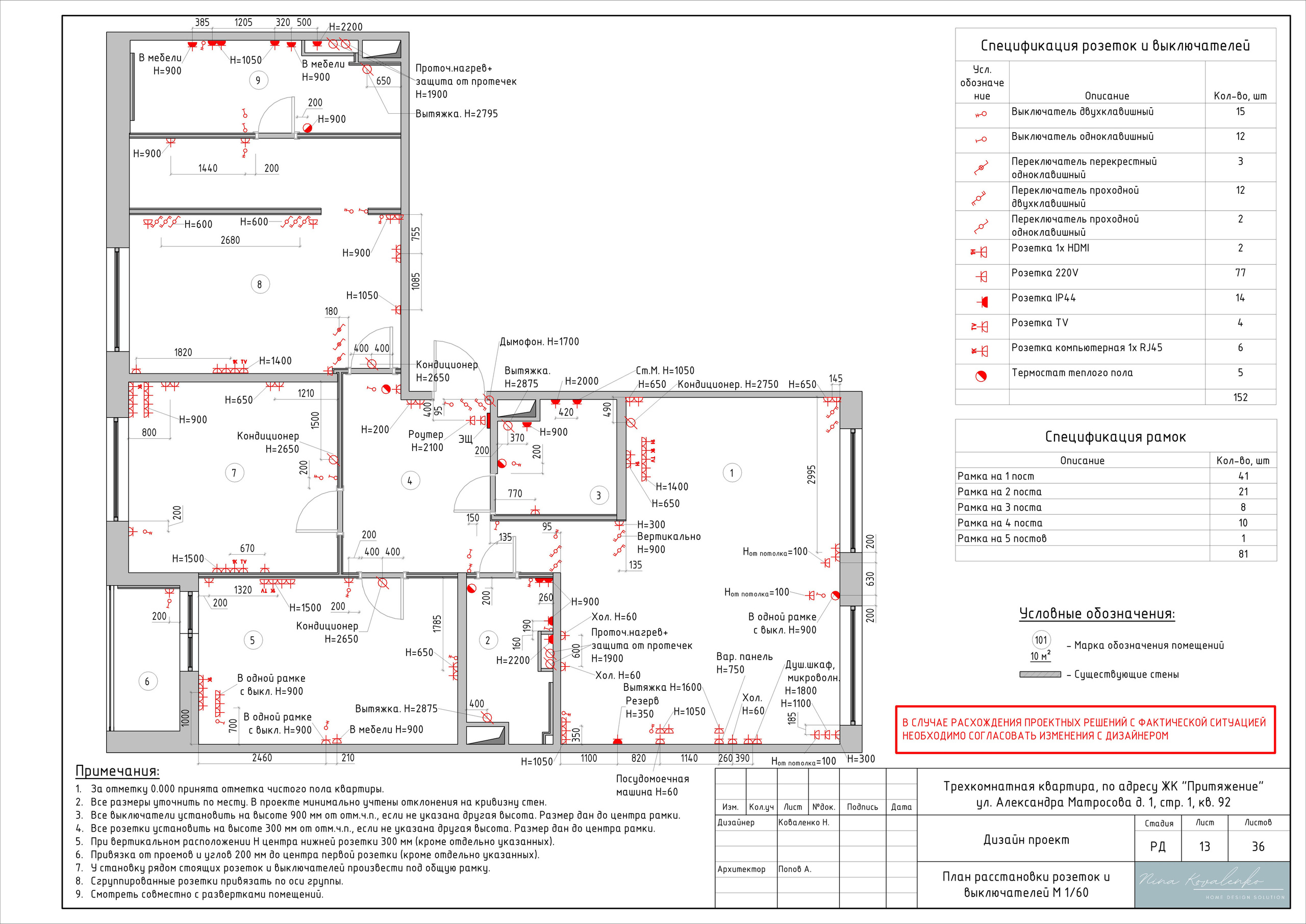
Проект РД
Дипломы и сертификаты
Отзывы
О нас
Дизайн-проекты
Частный дом в МО дизайн RYMAR archistudio
2-х комнатная квартира Дизайнер Маурер К.
Двухэтажный дом в Новой Ижоре
Трехкомнатная квартира в СПб
Стоматология в СПб
Проект дома Микеа-5
ЖК Ультра Сити Дизайнер Коваленко Н.
Загородный дом Дизайнер Лиза Белякова
Трехкомнатная квартира дизайнер Маурер К.
Однокомнатная квартира дизайнер Кирякова Д.
Магазин дверей в ТЦ Кубатура