Главная
Портфолио
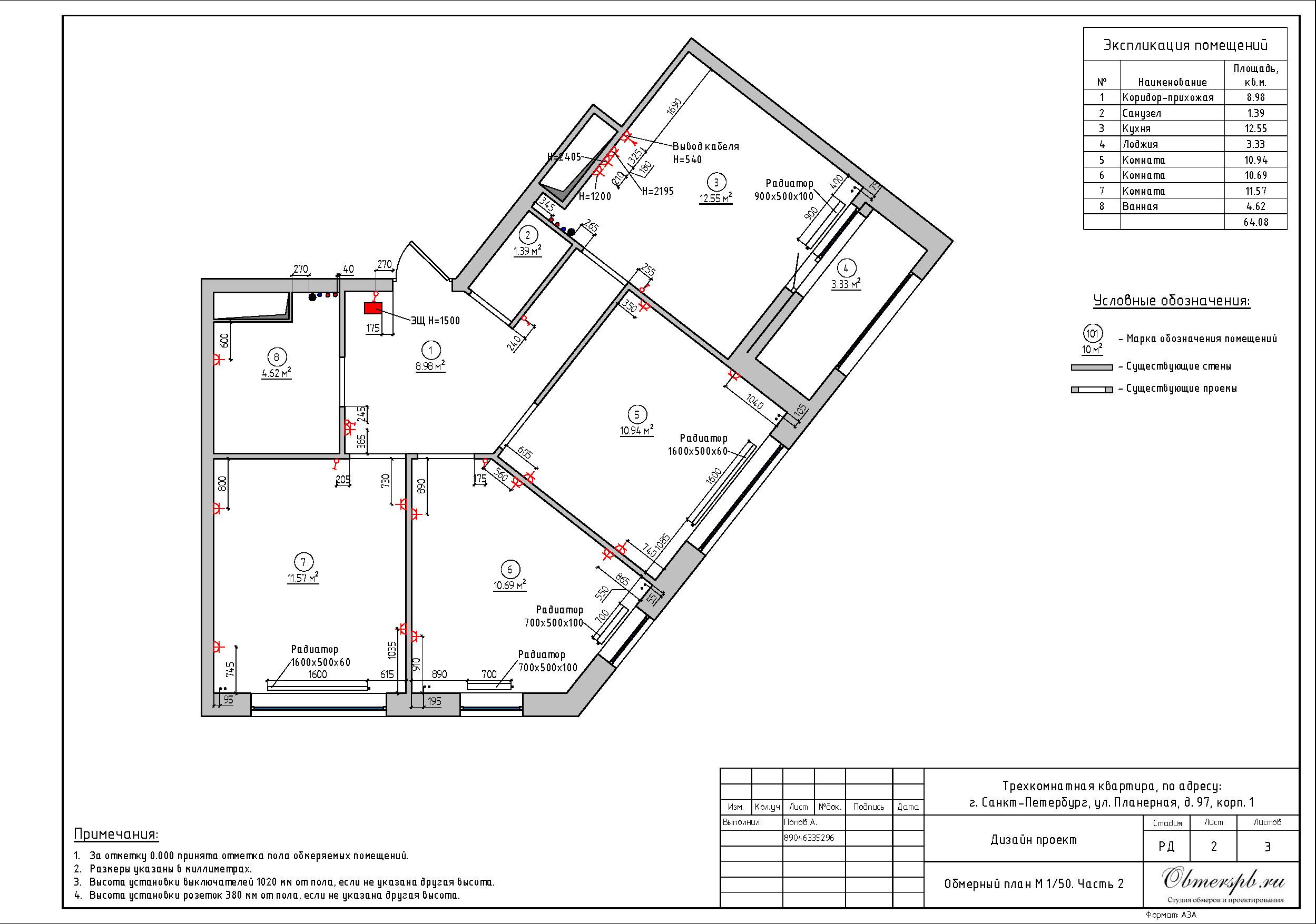
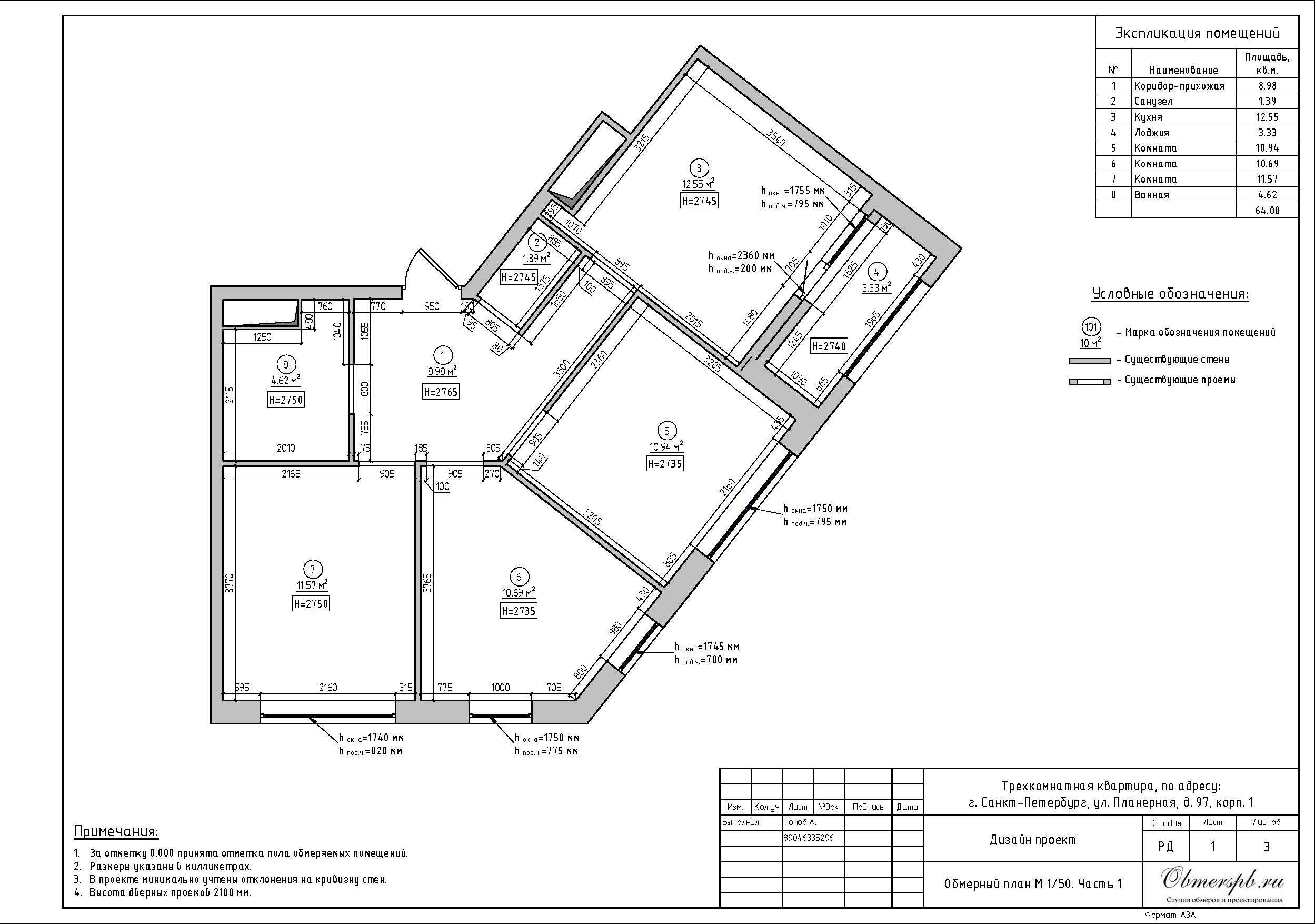
Обмеры
Планировочное решение
Дизайн-проекты
Услуги
Обмер помещений
Планировочные решения
Визуализации
Проект РД
Дипломы и сертификаты
Отзывы
О нас
Обмеры помещений Санкт-Петербург быстро, качественно и недорого
Обмеры помещений Санкт-Петербург быстро, качественно и недорого
Обмеры помещений Санкт-Петербург быстро, качественно и недорого
Обмеры помещений Санкт-Петербург быстро, качественно и недорого
Обмеры
г. Санкт-Петербург, пр. Богатырский 2А
Адлер, Черешня, ул. Владимировская, д. 61
г. Санкт-Петербург, ул. Кантемировская, д. 11
г. Санкт-Петербург, ул. Уральская д. 13Ж
г. Санкт-Петербург, пр. Петровский д. 22, к. 2 стр. 1
Адлер, ЖК Морская симфония
Адлер, Ленина 217А
г. Сочи, ул. Транспортная, д. 46
СПб, ул. Челюскина, д. 8, стр. 1
Сочи, Прозрачная д. 35
СПб, Заневский 41
Сочи Курортный проспект 96В стр 2 А
Сочи ТЦ Grand Marina
Сочи, Воровского 4
СПб, Гастелло 7