Главная
Портфолио
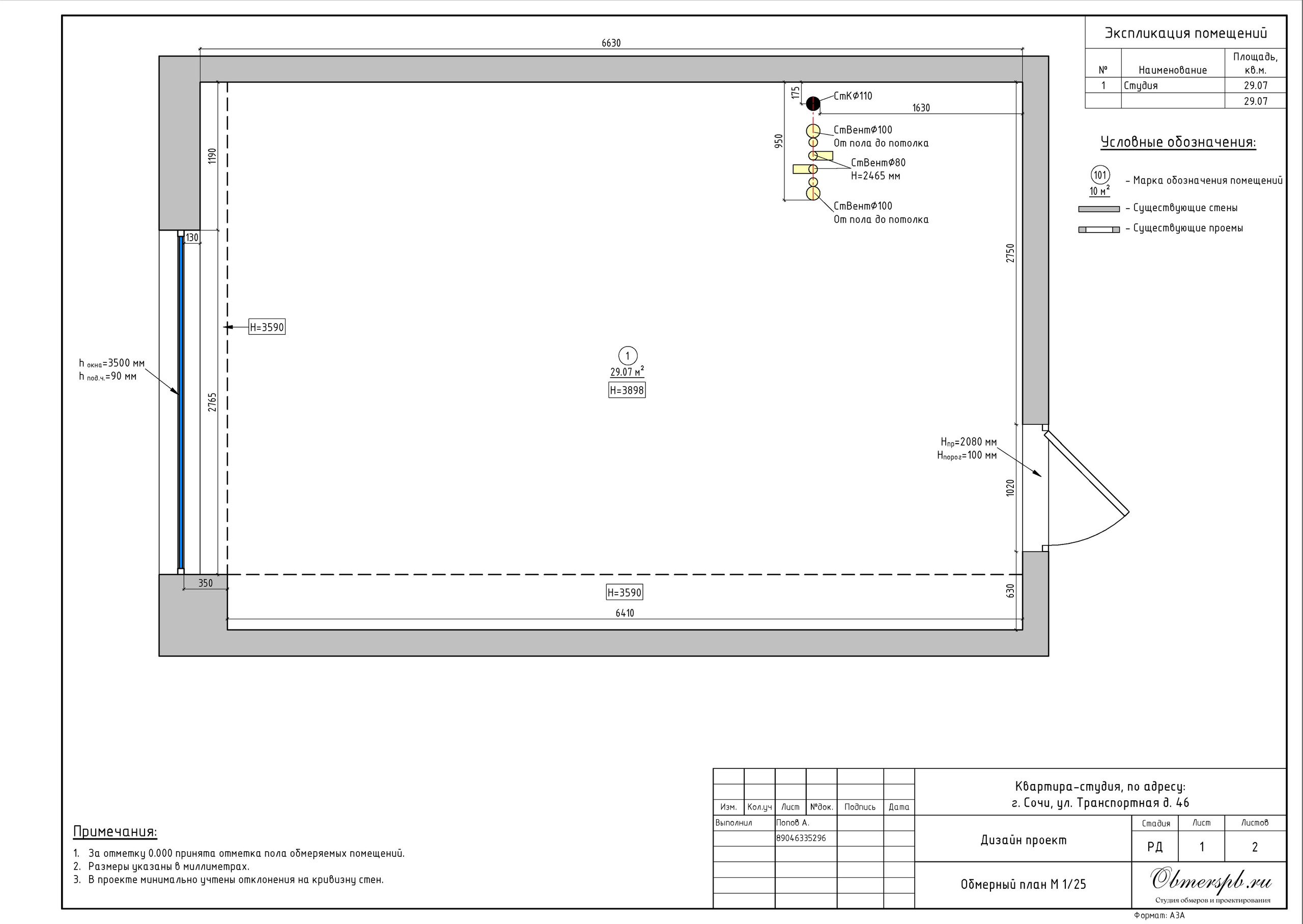
Обмеры
Планировочное решение
Дизайн-проекты
Услуги
Обмер помещений
Планировочные решения
Визуализации
Проект РД
Дипломы и сертификаты
Отзывы
О нас
Обмеры помещений Сочи быстро, качественно и недорого
Обмеры помещений Сочи быстро, качественно и недорого
Обмеры помещений Сочи быстро, качественно и недорого
Обмеры
СПб, ул. Челюскина, д. 8, стр. 1
Сочи, Прозрачная д. 35
СПб, Заневский 41
Сочи Курортный проспект 96В стр 2 А
Сочи ТЦ Grand Marina
Сочи, Воровского 4
СПб, Гастелло 7
СПб, Октябрьская наб. дом 40
Сочи, Московская, 22А
СПб Комендантский 57 к2
СПб, Мира 31
Сочи Политехническая 34
Сочи, Виноградная 2.3 к2(а)
Сочи Голубая 5
Адлер ЖК Фрукты