Главная
Портфолио
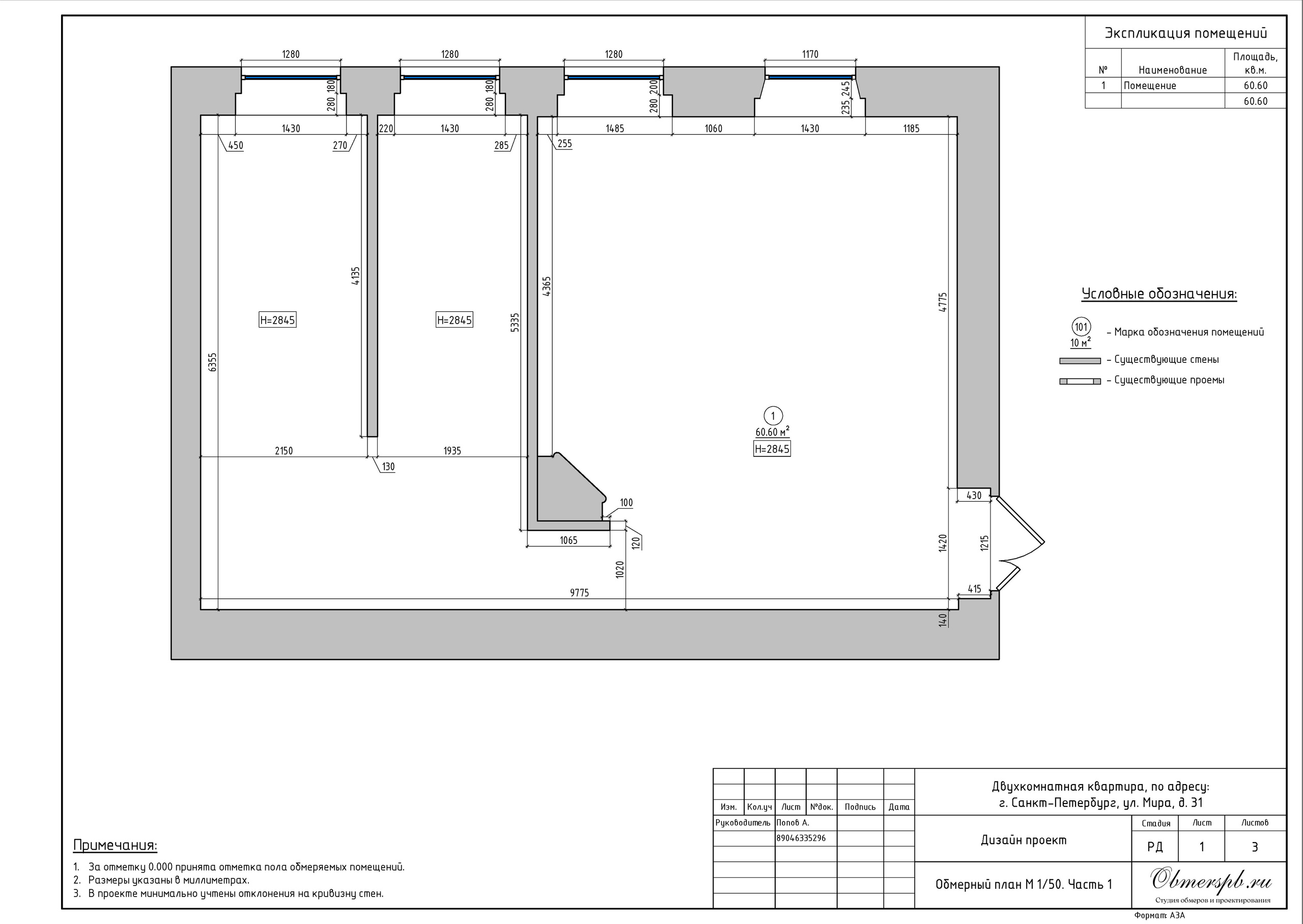
Обмеры
Планировочное решение
Дизайн-проекты
Услуги
Обмер помещений
Планировочные решения
Визуализации
Проект РД
Дипломы и сертификаты
Отзывы
О нас
Обмеры
Сочи Политехническая 34
Сочи, Виноградная 2.3 к2(а)
Сочи Голубая 5
Адлер ЖК Фрукты
Сочи Мясникяна 18-1
СПб, Республиканская д. 35
г. Сочи, ул. Яна Фабрициуса, д. 33
г. Сочи, ул. Яна Фабрициуса, д. 2
Сочи Курортный 105
Сочи, Нагорная д. 25
ЖК Фамилия
ЖК Питер
Ростов-на-Дону, Кировский 55
ТЦ City Plaza Адлер (Сочи)
СПб, ЖК Svetlana Park