Главная
Портфолио
Обмеры
Планировочное решение
Дизайн-проекты
Услуги
Обмер помещений
Планировочные решения
Визуализации
Проект РД
Дипломы и сертификаты
Отзывы
О нас
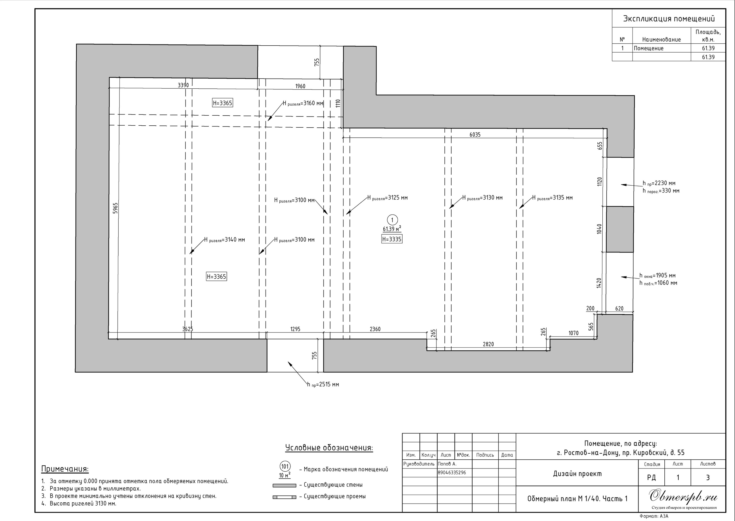
Обмеры
ТЦ City Plaza Адлер (Сочи)
СПб, ЖК Svetlana Park
Ростов-на-Дону, Капустина д. 8
ТЦ МореМолл
Зеленоградск, Приморская 4
СПб, Ивановская д. 36
СПб, Радищева 8
СПб, Бармалеева д. 18
ЖК Фрукты Сочи ул. Акаций 34к9, кв119-120
СПб, Витебский 99
Ростов ЖК РУБИН
СПб, Дачный 14 к1
Адлер, Просвещения, д. 25
Ростов-на-Дону, пр. Кировский д. 51
г. Пушкин, ул. Архитектора Данини д. 21