Главная
Портфолио
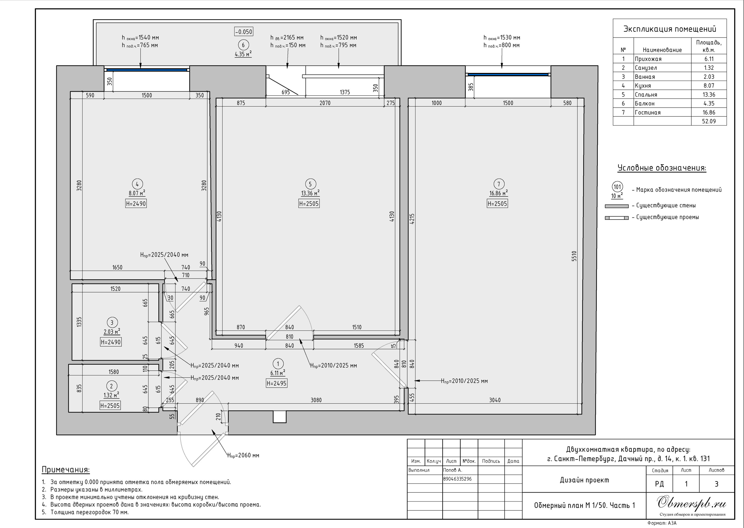
Обмеры
Планировочное решение
Дизайн-проекты
Услуги
Обмер помещений
Планировочные решения
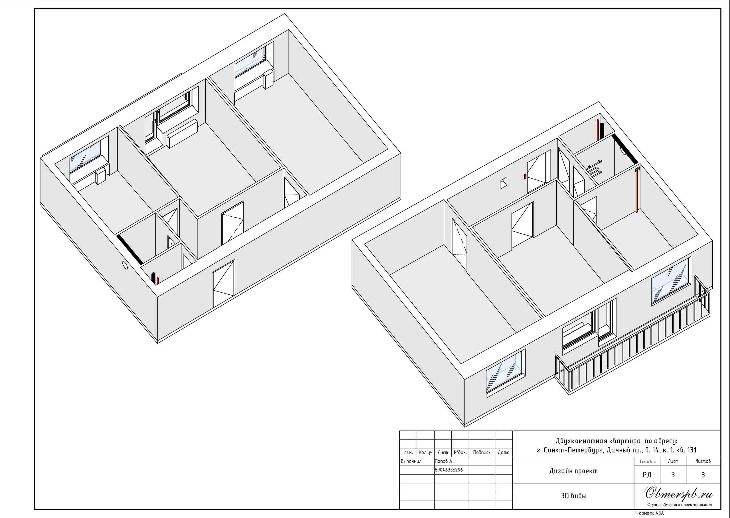
Визуализации
Проект РД
Дипломы и сертификаты
Отзывы
О нас
Обмеры
Адлер, Просвещения, д. 25
Ростов-на-Дону, пр. Кировский д. 51
г. Пушкин, ул. Архитектора Данини д. 21
Эстосадок, наб. Лаванда, 6А
АК Моне Сочи
ЖК Георг Ландрин Санкт-Петербург
Однокомнатная квартира ЖК Самоцветы
Однокомнатная квартира ЖК Петровский на воде
Двухкомнатная квартира ЖК Новое Купчино
Трехкомнатная квартира ЖК Эталон на Неве
Однокомнатная квартира в ЖК Ариосто
Пушкин, Анциферовская 11
Однокомнатная квартира ЖК Галактика
Трехкомнатная квартира на Ленинском
Двухэтажный дом в Энколово