Главная
Портфолио
Обмеры
Планировочное решение
Дизайн-проекты
Услуги
Обмер помещений
Планировочные решения
Визуализации
Проект РД
Дипломы и сертификаты
Отзывы
О нас
Обмеры помещений, квартир и домов в Санкт-Петербурге и Сочи
Обмеры помещений, квартир и домов в Санкт-Петербурге и Сочи
Обмеры
Однокомнатная квартира в ЖК Ариосто
Пушкин, Анциферовская 11
Однокомнатная квартира ЖК Галактика
Трехкомнатная квартира на Ленинском
Двухэтажный дом в Энколово
ЖК Ленинград
ЖК Триумф Парк
ЖК Yoga
ЖК Притяжение
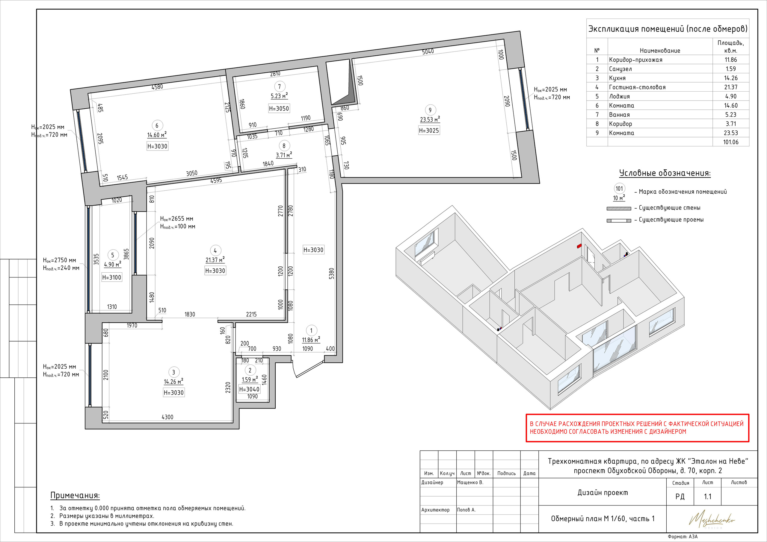
ЖК Эталон
ЖК Легенда Героев
Охта парк
Введенская 19
Малая Бухарестская 12
Невский 137