Главная
Портфолио
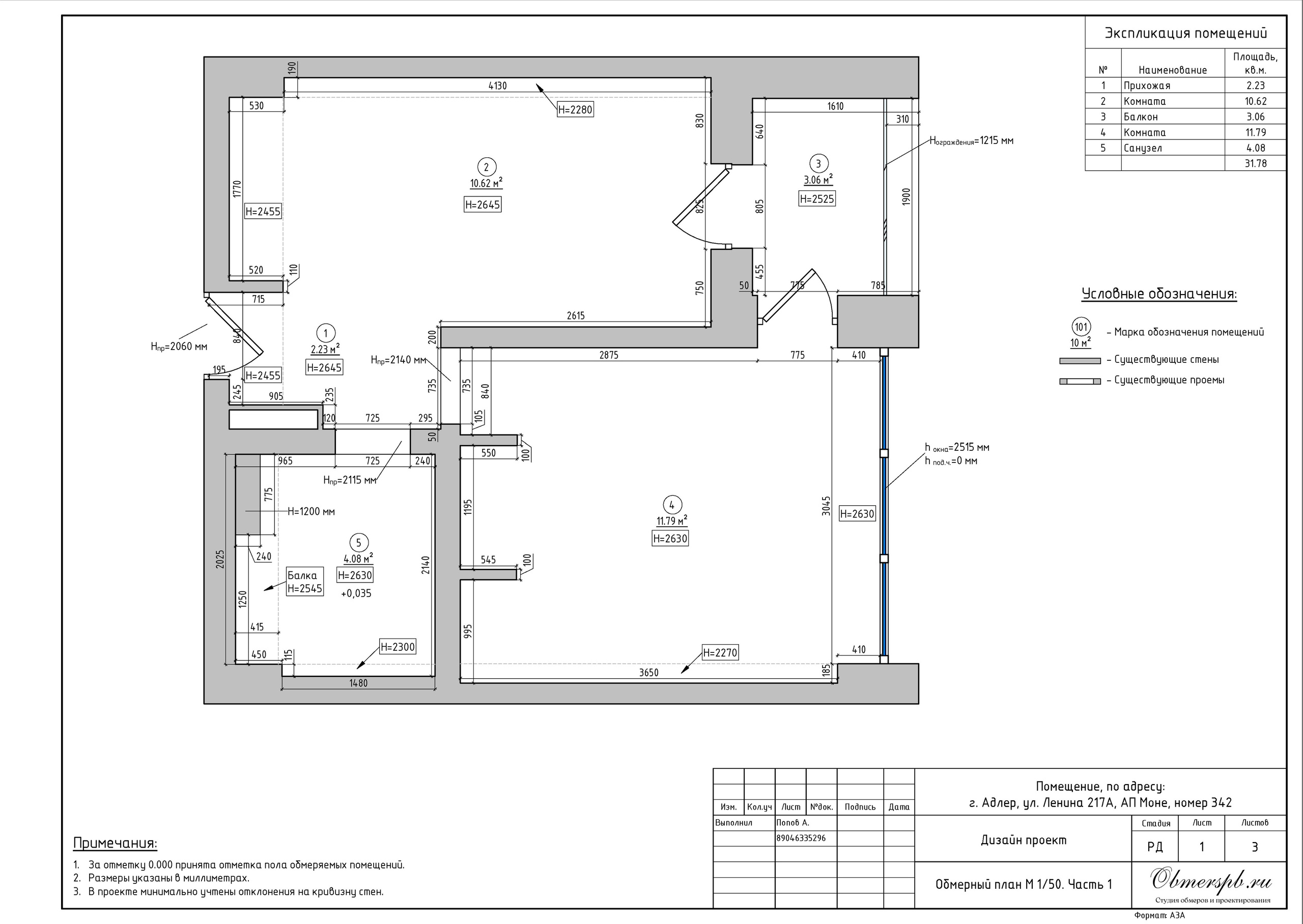
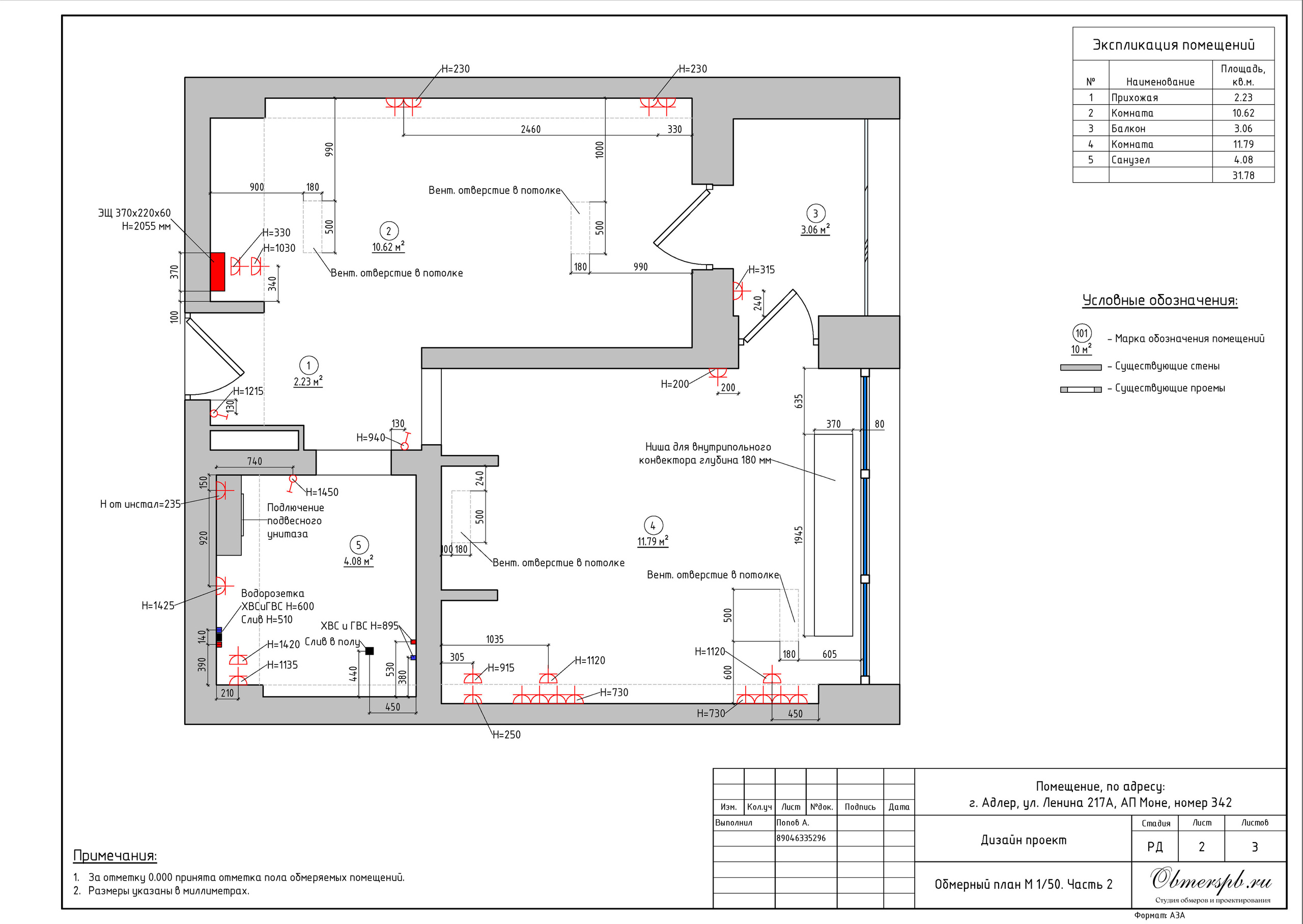
Обмеры
Планировочное решение
Дизайн-проекты
Услуги
Обмер помещений
Планировочные решения
Визуализации
Проект РД
Дипломы и сертификаты
Отзывы
О нас
Обмеры
ЖК Георг Ландрин Санкт-Петербург
Однокомнатная квартира ЖК Самоцветы
Однокомнатная квартира ЖК Петровский на воде
Двухкомнатная квартира ЖК Новое Купчино
Трехкомнатная квартира ЖК Эталон на Неве
Однокомнатная квартира в ЖК Ариосто
Пушкин, Анциферовская 11
Однокомнатная квартира ЖК Галактика
Трехкомнатная квартира на Ленинском
Двухэтажный дом в Энколово
ЖК Ленинград
ЖК Триумф Парк
ЖК Yoga
ЖК Притяжение
ЖК Эталон