Главная
Портфолио
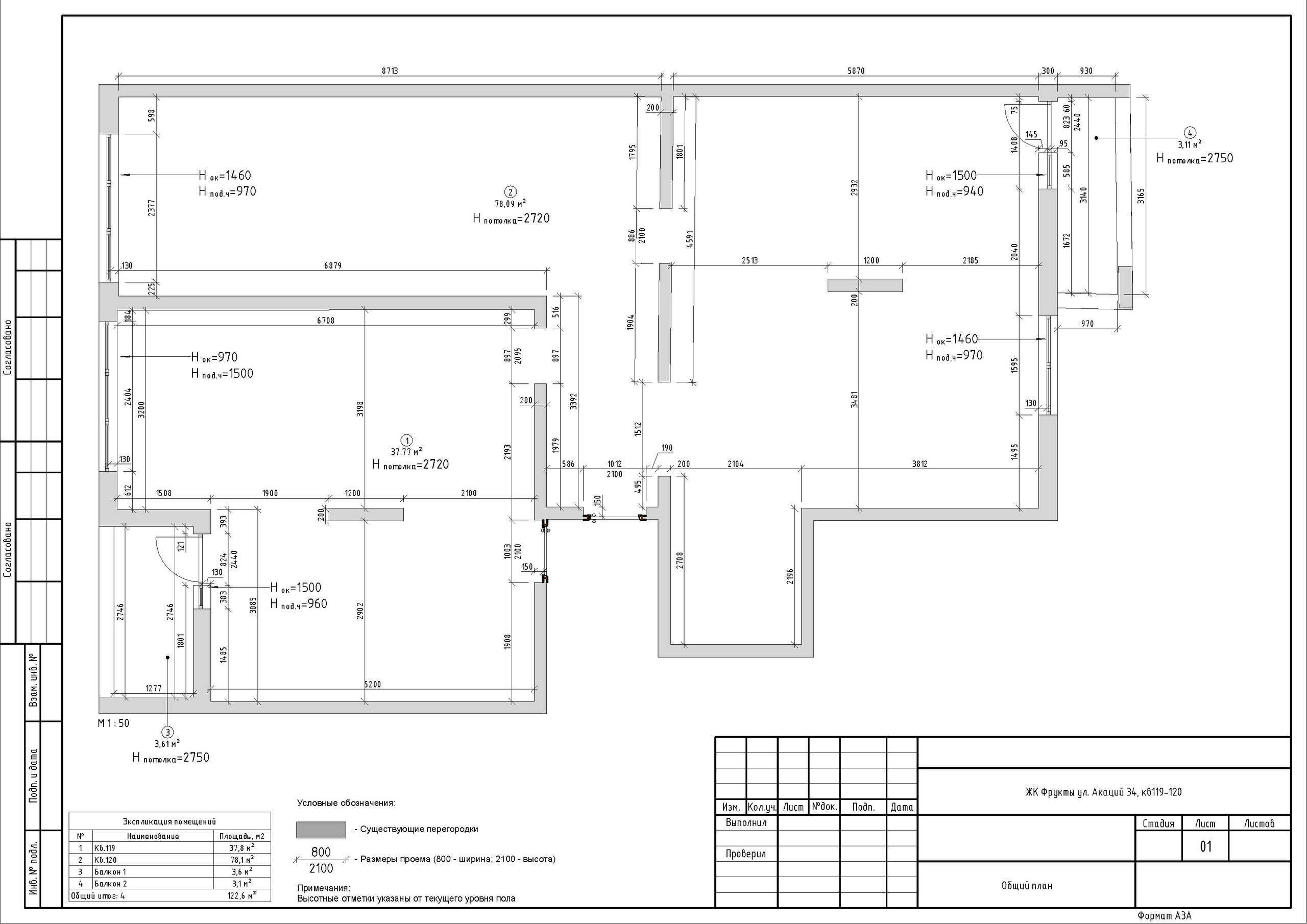
Обмеры
Планировочное решение
Дизайн-проекты
Услуги
Обмер помещений
Планировочные решения
Визуализации
Проект РД
Дипломы и сертификаты
Отзывы
О нас
Обмеры
СПб, Витебский 99
Ростов ЖК РУБИН
СПб, Дачный 14 к1
Адлер, Просвещения, д. 25
Ростов-на-Дону, пр. Кировский д. 51
г. Пушкин, ул. Архитектора Данини д. 21
Эстосадок, наб. Лаванда, 6А
АК Моне Сочи
ЖК Георг Ландрин Санкт-Петербург
Однокомнатная квартира ЖК Самоцветы
Однокомнатная квартира ЖК Петровский на воде
Двухкомнатная квартира ЖК Новое Купчино
Трехкомнатная квартира ЖК Эталон на Неве
Однокомнатная квартира в ЖК Ариосто
Пушкин, Анциферовская 11